上海元格电气科技有限公司
首页
企业简介
产品大全
联系我们
企业信息
访客留言
产品大全
Product
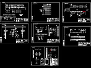
探寻工业自动化宝藏 qd25t电气原理图与机械CAD图纸资源解析
四川省格辉阳电气有限责任公司与元格电气 探索两家电气企业的合作与创新之路
解锁高效电气设计 PNG电气CAD素材、模板与元格电气的深度应用
电气屏柜元器件安装工艺规范指南
电力一次系统与元格电气 电力系统的基石与解决方案
如若转载,请注明出处:http://www.pyjts.com/product/list-2.html
第一页
上一页
1
2